|
|
 |
Sur la lisière ferroviaire, entre une rue surélevée et un cœur d’îlot partagé, la parcelle s’allonge sur 70 mètres, entre le métro et les sheds du site de maintenance.
La rue Ordener, étroite tel un canyon, débouche sur ce territoire ferroviaire et devient un balcon panoramique. C’est justement à ce passage, du canyon au balcon, de la densité au paysage, que le projet se situe. Il doit donc s’adresser à la fois à la ville dense et au grand paysage.
La façade Sud montre à voir une grille régulière provenant de cette logique structurelle nécessaire à la conservation de l’existant. Derrière, la façade close couverte ondule et donne différentes orientations aux logements.
Au nord, à contrario, la nouvelle façade étant porteuse, les nez de dalles ondulent de manière irrégulière et développent un profil plus découpé, alors que la façade close couverte est orthogonale.
Exposition
Les pignons sont traités comme de véritables façades et sont la clef de lecture de ce double langage structurel.
La peau est donc métallique, comme la structure. Très sombre, reflétant les lumières, elle s’affirme par l’élégance de ses profils. Le garde-corps vitré donne un aspect précieux à cette structure brutale.
Profondeur
Le bâtiment travaille la profondeur de sa façade. La grille devient le support d’une biodiversité urbaine: des arbres en pot colonisent les façades, créent de l’ombre, et s’imposent en toiture. La toiture est partagée entre un usage collectifs et les terrasses privatives des logements du dernier niveau.
Une extension fragile
Le projet s’élève au dessus du bâtiment existant comme une extrusion de la structure initiale. Tramée et ouverte, elle contraste avec la base en brique rouge. La structure existante est conservée, seule la façade arrière (nord) est déposée, afin d’épaissir le bâtiment.
|
 |
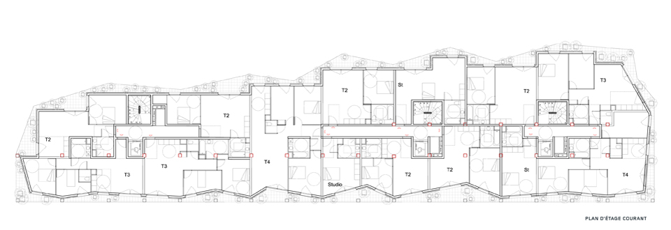
En plan, deux programmes se partagent le même bâtiment: la partie sociale est concentrée sur la cage d’escalier Est, alors que l’accession est répartie sur les cages centrale et Ouest. Les trois halls sont traversant, donnant des vues sur le cœur d’îlot vert, et procurant la sensation d’une lame qui s’épaissit à mesure que l’on s’approche du paysage ouvert.
Un projet en "strates"
- le rez-de-ville, interface entre le bâtiment et la ville, accueille des typologies «atypiques» de logements / ateliers. La préexistence du bâtiment ne permettant pas de développer un rez-de-chaussée de plein pied, ces typologies vont permettre de l’animer. Une trémie permet d’ouvrir un espace en double hauteur au -1 propice à des usages alternatifs (studio de musique, salle d’exposition...).
- le rez-de-jardin, à un niveau plus bas, accueille des logements donnant sur un espace vert en pleine terre. 12 places de stationnement sont prévus dans l’immeuble, accessibles par un ascenseur à voiture.
- en étage courant, un maximum d’appartements sont conçus en traversant ou en bi-orientés. Tous les logements profitent d’un espace extérieur.
Fiche technique
Adresse : Rue Ordener, Paris 18
Programme : réhabilitation et extension, 129 logements collectifs + locaux d’activités
Profil environnemental : Réglementation thermique 2012 Certification NF logement démarche HQE
Dates : Lauréat du concours en 2015 - En cours
Maître d’ouvrage: Eiffage Immobilier, Chargé d'opération : Mathieu FERRAND
Maîtrise d’œuvre : Martin Duplantier Architectes
Mission : Base - Budget : 16 M€ Surface : 7 087 m2 |