BATI'life - Evénements, communication et business networking des acteurs de la construction
 
Slide background
Slide background
Slide background
Slide background
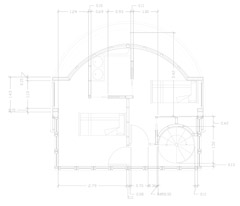
Slide background Rez-de-chaussée
Slide background 1er étage
Slide background 2e étage
BATI'life

ORK : une maison passive au design novateur

Maison individuelle 100 % passive à 100 000 euros

COORDONNÉES

Esther PINABEL
Directeur associé
06 10 31 33 81
Adresse : Siret : 503 701 708 00029 - TVA Intracommunautaire : FR45503701708 -

Ni science-fiction, ni utopie, la première maison ORK verra le jour en juin 2011 à Valderoure dans les Alpes-Maritimes.

Une création ADN Designers : Abdesslam Laraki et Stéphane Mathieu Company

Son créateur, le designer Stéphane Mathieu souhaite éveiller les consciences : « En France, à l’exception d’une centaine de maisons passives, on en est encore à la brique et au ciment. Alors que la géothermie, l’éolien et le photovoltaïque existent depuis plus de 25 ans, ces technologies ne sont que rarement mises en œuvre. »

« Ork, c’est la réunion de l’ensemble de nos compétences industrielles dans le domaine de l’écologie : solaire, structure en acier galvanisé, béton en chanvre et Corian®. 100% passive, c’est un symbole de liberté, d’autonomie et d’indépendance. »

Depuis son annonce (fin 2010), près de 1 000 maisons ORK ont été commandées (90% particuliers, 10% collectivités). Leur livraison est prévue sur le second semestre 2011. 

La première version a été conçue pour accueillir une famille de quatre personnes (surface 90 m2 en R+2). Compte tenu des demandes, une version plus petite, pour un couple, est à l’étude.

La structure est réalisée à partir de profilés en acier galvanisé assemblés par vis auto-perceuses. 

L’isolation s’effectuant par l’extérieur, un complément d’isolation thermique et phonique peut être réalisé à l’intérieur de l’ossature sans affecter l’épaisseur de la paroi.

Le bâtiment est ainsi adapté aux environnements les plus sévères :

  • l’habillage intérieur fait appel à la technologie de la plaque de plâtre sur ossature métallique, solution éprouvée et reconnue pour ses performances, sa souplesse et la qualité des finitions qu’elle autorise,
  • l’enveloppe se décline à volonté avec tous les matériaux souhaités.

« Sa forme singulière, précise Stéphane Mathieu, a été calculée pour économiser l’énergie. »

La toiture, recouverte de cellules photovoltaïques, fournit l’énergie électrique. Sa large façade vitrée joue un rôle thermique. Sa structure métallique est composée de barres galvanisées de 20 kg chacune. Le toit courbe recueille l’eau de pluie dans une cuve de 10 000 litres.

Caractéristiques du projet initial

  • Système constructif : ossature acier galvanisé
  • Murs extérieurs : ossature acier galvanisé, béton chanvre
  • Plancher bas : ossature acier galvanisé, béton chanvre
  • Toiture : ossature acier galvanisé, Corian® et cellules photovoltaïques, isolant ouate de cellulose
  • Gestion de l’air intérieur : puits canadien
  • Système de récupération d’eau de pluie

Aménagements intérieurs proposés, modulables à souhait

  • RDC : salon, salle à manger, cuisine américaine, wc, salle de bains
  • 1er étage : deux chambres + salle de bains
  • 2e étage : chambre parentale + salle de bains

Détails de construction

Le principe d’assemblage est celui du « mécano ». Livré en kit, la maison peut très bien être assemblée par son propriétaire.

Ressources en ligne

Le blog consacré au projet ORK
Le blog du designer Stéphane Mathieu
APCI (Agence pour la Promotion  de la Création Industrielle)

A propos d’ADN

En 2010, Abdeslam Laraki et Stéphane Mathieu s’associent pour créer ADN, Architecture Design et Nanotechnologies. Cette nouvelle entreprise aura deux axes principaux, bureau de style pour des industriels internationaux ainsi que la création d’une nouvelle marque de luxe spécialisée dans le sur mesure.

Cette association de deux designers connus internationalement repose sur leurs passions du design et leurs affinités pour les belles lignes. Rare sont les designers qui se regroupent pour créer un bureau de style.

Automobiles, bateaux, mobiliers, architecture, décoration, accessoires de mode et design industriel seront créés dans leur nouvel établissement. Fort de leur historique dans le milieu du design, les deux compères vont concurrencer les bureaux de style comme Pininfarina où encore Porshe Design. Derrière eux des équipes rodées depuis plusieurs années aux différents exercices de style seront présentes pour réaliser techniquement  les créations deux designers.

 

Illustrations : Jean-Pierre Dasilva

 

Imprimer